Residential Projects

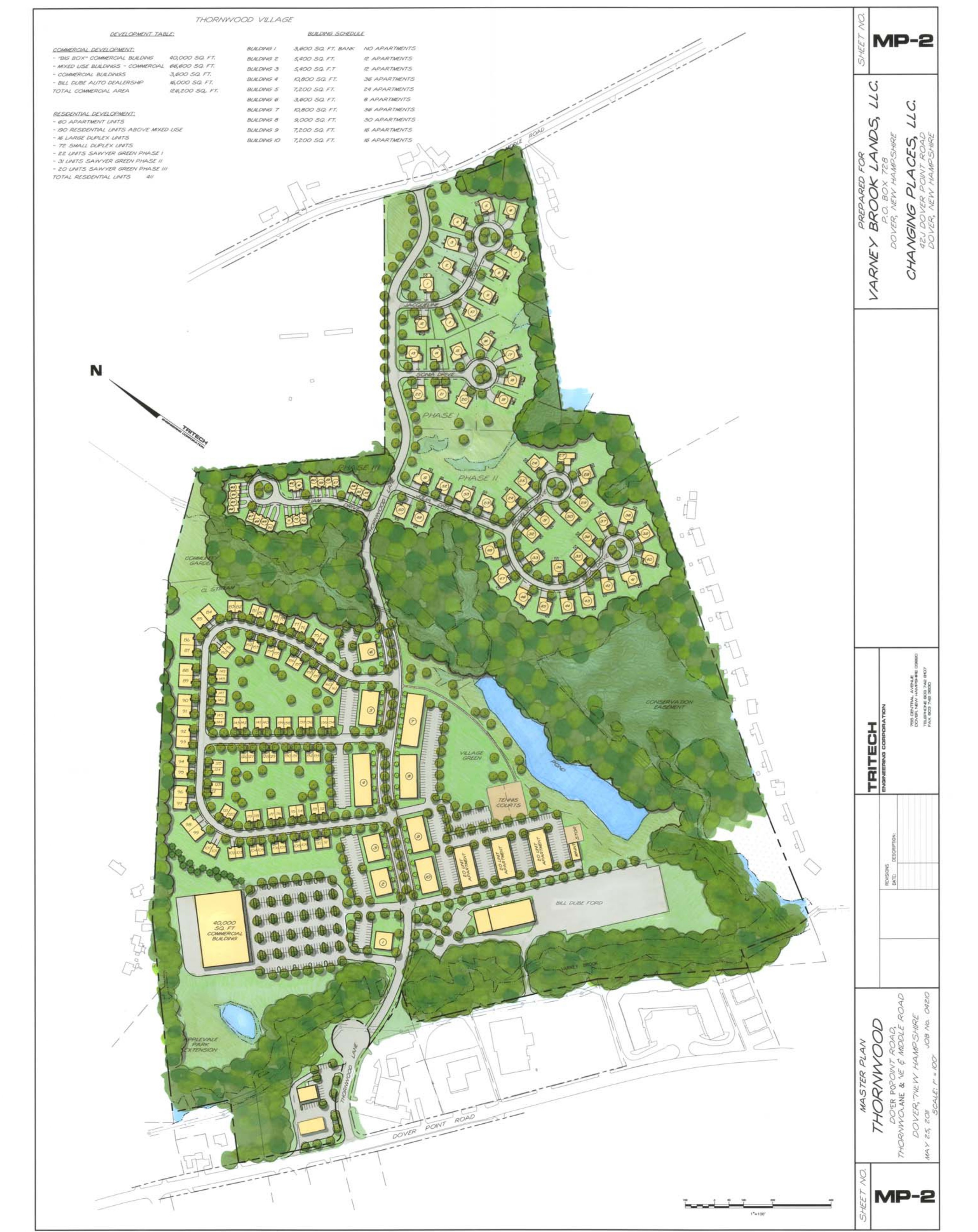
Thornwood Commons

Thornwood Commons

Dover, New Hampshire • Mixed-Use Residential Community • 100+ Acre Site

Thornwood Commons is a 100+ acre redevelopment that includes a large residential component featuring 48 energy-efficient, green-design, age-restricted single-family homes. The project integrates residential living with commercial and congregate care facilities while preserving natural features.

Key Design Elements:

  • 100K+ sq. ft. retail space
  • 100K+ sq. ft. office space
  • 112-unit congregate care facility
  • Energy-efficient “green home” design
  • 3,700 ft public roadway
  • Two 10-foot span arched culverts
  • Pond reutilized as a detention basin
  • Dam Breach Analysis